诚客家(公寓)流塘店精彩蜕变——破茧重生,只为遇见更好的你!
发布时间:2020/10/23
本期案例是位于深圳市宝安区新安街道79区流塘建安二路31号的诚客家公寓,它的原身是某某公寓,2020年的疫情让它荒芜……
.png)
《改造前房间》

直至遇到了正诚,现在的它跟当初的样子截然不同,已然没有一丝旧迹……
《改造后外观》
.jpg)

《改造后房间》

遇到正诚,它仿若涅槃重生……
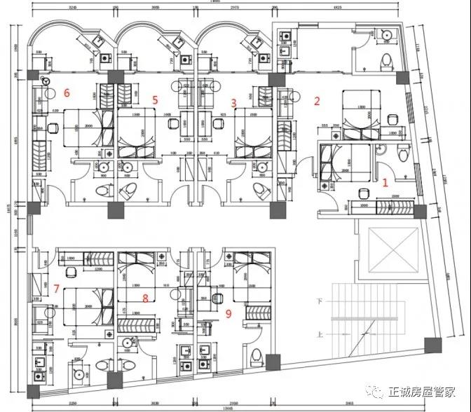
项目总建筑面积2000平方米,诚客家设计了一二楼商铺和三至八楼共46个房间,2020年9月下旬开业。
《户型图》
.jpg)
现代化的生活步伐,让人身心俱疲,渴望在家找到温馨、自由,不受束缚的感觉,现代人对家居节能环保要求日益提高,要绿色家居,低碳生活。诚客家在家居的装潢装饰上,更多地注入了消费者健康、安全、环保、文化的理念。户型的流线较为简单、实用,具有构成独立却又完整空间,空间功能分布合理且各个房间动静分区较为合理。
《房间实景集》
.jpg)

.jpg)

内墙颜色以雅灰、米黄、浅蓝、淡粉等色系分几个系列,宁静温馨雅致;材料选用环保的乳胶漆,安全无味。
由于单身公寓的整体面积较小,在室内的的设计上尽量要求简单一点的设计,开一些窗户、采用透明门和透明墙的设计都能做到很好的视觉延伸效果,不仅仅如此还能够是整个家居通透一体、一眼望尽,犹如简约世界一般令人心旷神怡的。
《01、07房间实景集》






单身公寓本来在空间上就是有限的,如果购买了尺寸过大的家具就会使得视觉上格格不入的感觉,同时在空间上也会造成不必要的浪费,使得人身在其间行动不便的结果!我们精心计算各家具的尺寸面积,充分布局,使得既实用又不占空间。
《02、06房间实景集》






为了居住者的居住健康,诚客家公寓的家具均优选环保家具,金属铁艺床、烤漆金属架的开放式衣柜、E0级板材的书桌及床头柜、铁艺茶几、布艺沙发、一级冷扎钢板鞋柜等,虽是新装修,却无一点气味,可放心入住!
有开放厨房,也有独立厨房,上下壁柜都安排上,收纳无忧;滚筒洗衣机嵌入大理石台下方,不占地,充分合理利用空间。要大阳台或精致小家任君选择。

.jpg)
.jpg)
高档宽敞的浴室,洗手盆、置物架等设施完善,在如此明亮的浴室里沐浴实在是一种享受!且统一采用TCL蓄水电热水器,保障居住者的人身安全。



原电梯老破旧还时常出故障,诚客家出资更换新电梯,更好地保障租户的居住安全。楼道宽敞,感应灯灵敏光感强。
《电梯楼道实景图》

.jpg)
.jpg)

一楼大堂宽敞明亮,布置有休闲沙发……
《一楼大堂实景图》
.jpg)
.jpg)
.jpg)
清风徐徐,花样年华,来楼顶绿植围绕之下的凉亭喝喝小酒谈谈情……
《楼顶》
.jpg)
线路安全
诚客家公寓全部设计内置隐藏线条,跟上时代的质感开关,使得房间的空间更开阔,居家更安全。

消防安全
干粉灭火器、消防卷盘、烟感器、应急灯、报警器及安全标志等全部安排上!
《消防图》

.jpg)

.jpg)
装修完毕且通风放置一个月后,诚客家聘请了专业的检测机构到公寓进行室内空气检测,合格才对外放租。
《室内空气检测报告》
.jpg)
.jpg)
——破茧重生,
只为遇见更好的你!
诚客家(公寓)流塘店火热招租中……
地址:流塘建安二路31号
公寓店长:
13724307912
或拨打客服专线:
4001-666-865


